


CATEGORIA
LUOGO
Malcesine – VR
ANNO
2021
PROGETTO E REALIZZAZIONE
Bonfante – Hub48


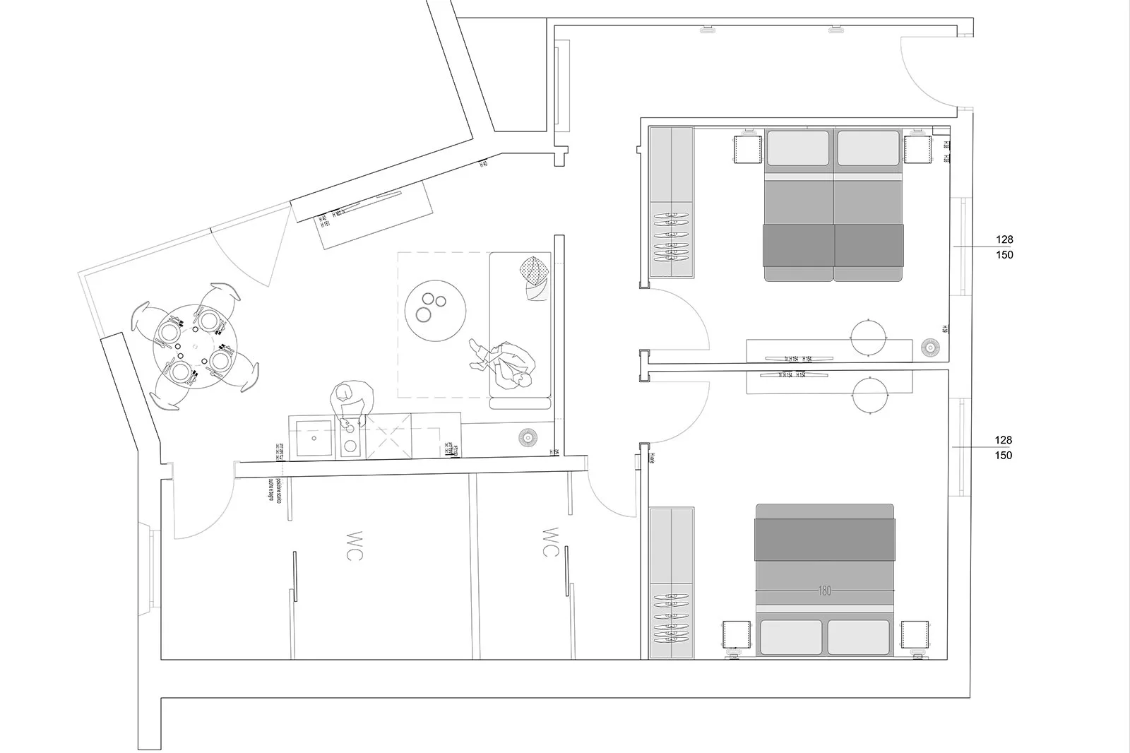
Costruito nel 2015 su una struttura preesistente all’interno del parco dell’hotel Panorama, considerata la posizione privilegiata con vista sull’incantevole sul lago di Garda, la committenza ha deciso di destinare l’edificio a una clientela selezionata, in particolare a gruppi familiari numerosi che cercavano un’esperienza abitativa più simile a una residenza che a un hotel.


Il risultato funzionale ottenuto è stato quello di rendere lo spazio fruibile per un massimo di 6 persone, incorporando un ampio soggiorno con area TV, divano trasformabile, cucina attrezzata completa, due servizi igienici e due spaziose camere matrimoniali.



L’arredamento per hotel e l’atmosfera interna riflettono l’essenza naturale; impiegando tonalità verdi, finiture naturali dei materiali nobilitati, tessuti coordinati con laccature chiare, completati da rivestimenti vinilici con motivi botanici che aggiungono un sottile tocco di modernità.




Abbiamo curato l’intera progettazione dell’hotel, dal design alla pianificazione degli spazi, l’esecuzione delle rifiniture interne, la scelta dei materiali, la fornitura e installazione di tutti gli elementi d’arredo dell’hotel, sia fissi che mobili.

Newsletter
Bonfante Interior Contractor
Via Calcara, 48
37053 Cerea, Verona (Italia)
Bonfante Interior Usa Inc
Harding Avenue,
Miami Beach, FL – 33141 (USA)
www.bonfanteusa.com
© 2025 Bonfante – Bonfante Interior Contractor Srl Unipersonale. – P.IVA 04683850236 – REA 440641 – Capitale Sociale I.V. 50.000,00€
Privacy Policy – Termini e condizioni d’uso – Cookie Policy – Credits: 045WEB
© 2025 Bonfante
Bonfante Interior Contractor Srl Unipersonale.
P.IVA 04683850236
REA 440641
Capitale Sociale I.V. 50.000,00€
Credits:045WEB